

Референс:
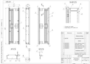
Предназначена для организации кабельного и отсека по высоте шкафа шириной 200мм., а также для ограничения доступа к токоведущим частям оборудования. Устанавливается как справа, так и слева внутри шкафа шириной от 600мм.
Спецификация
Документы


